有限会社 イヤダニ工務店
電話
099-298-2883
有限会社 イヤダニ工務店
家づくりのはじまりに、描く暮らし
2026年01月30日
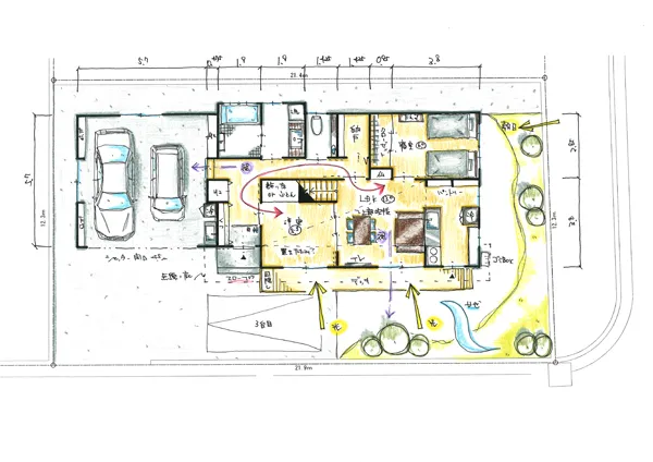
住まいづくりのお打ち合わせで、私たちが最初にご提案するのは、手書きスケッチのプラン案です。

想いを込めて検討を重ねご提案したプランを前に
「ここでご飯を食べて」「このあたりから朝の光が入りそう」と
これからの暮らしを思い描く、ご家族の姿があります。
描かれたスケッチの中に、まだ形になっていないご家族の時間や会話が、少しずつ重なっていく。
「なんだかいいね」「この場所、落ち着きそう」
そんな言葉が自然とこぼれる瞬間に、家づくりは静かに動き出します。

家づくりは、決めることの多い時間です。
だからこそ、ご家族自身が最初に感じた「いいかも」という感覚を、私たちは大切にしています。
派手さよりも、暮らしの中で少しずつ馴染んでいく心地よさ。
時間が経つほど、「この家でよかった」と思えることが、何より大事なのだと思います。
完成したときの感動だけでなく、こうした始まりのささやかなときめきも家づくりの大切な一部。

ご家族の想いを受け止めながら、
私たちは今日も『なんだかいいよね』の住まいづくりを続けています。
閲覧履歴